Продається квартира Нова-2, 5, Бориспіль, Бориспільський, Київська (№ 213-073-268)
Ціна: 2 857 220 грн.

Нова-2, 5, Бориспіль, Бориспільський, Київська
Характеристики
| Ціна: | 2 857 220 грн. |
|---|---|
| № об'єкта: | 213-073-268 |
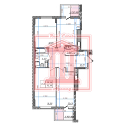
| Кімнат: | 3 розд |
| Поверх: | 12 / 13 ліфт |
| Площа: | 75 / 40 / 13 м2 |
| Санвузол: | 2 роздільний |
| Балкон: | балкон+лоджія |
| Стан квартири: | Після будівельників |
| Тип будинку: | Сучасний монолітний |
| Опалення: | Лічильник на опалення |
| Додатково: | новобудова |
Опис
‼️ПРОДАНО‼️
3-х кімнатна квартира в будинку комфорт класу, м. Бориспіль, ЖК 'ПАРКОВИЙ', вул. Нова-2 буд.5, 75,19/39,56/12,63 м.кв., 12 поверх 13-ти поверхового будинку.
Будинок монолітно-каркасний утеплений мінеральною ватою, передбачено 2 ліфта вантажний та пасажирський.
Стан квартири: після будівельників, на підлозі стяжка, на стінах штукатурка, розведена електрика, вікна металопластикові, лічильник на ОПАЛЕННЯ, світло та воду. В квартирі 2 балкона. Квартира двостороння. Панорамний вид з вікон на місто.
Підземний паркінг та бомбосховище передбачено в будинку. З 1 по 2 поверх будуть розміщуватись нежитлові приміщення ресторану або кафе, салонів, магазинів і т.п.
Поруч: школа, та дитсадок, кінцева зупинка маршрутки на Київ.
Здача будинку 2 квартал 2026 р.
Вартість квартири 38000 грн./м.кв.
Можливо оформити квартиру по 'єОселя' та 'єВідновлення' на 1 - 20 років · 1-й внесок від 10 - 30% під 3 - 7% річних, а також по іншим державним програмам в Укргазбанк або Ощадбанк.
По даній квартирі на комісійні не претендуємо.
https://pran.kiev.ua/kvartiry_prodaga/ann-3073268.html




















