Продається квартира Київська, Бориспільський, Бориспіль, Соцмістечко, 12 (№ 213-158-316)

Ціна: 27 000 $
Характеристики
| Ціна: | 27 000 $ |
|---|---|
| № об'єкта: | 213-158-316 |
| Кімнат: | 1 розд |
| Поверх: | 1 / 4 |
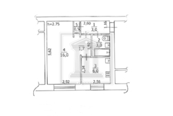
| Площа: | 30 / 16 / 6 м2 |
| Санвузол: | 1 роздільний |
| Балкон: | відсутній |
| Стан квартири: | Хороший стан |
| Тип будинку: | Хрущовка цегляна |
| Продається з: | Меблями та технікою |
| Опалення: | Громадська котельня |
Адреса: Київська, Бориспільський, Бориспіль, Соцмістечко, 12
‼️ПРОДАНО‼️
АКЦІЙНА ЦІНА ДО КІНЦЯ МІСЯЦЯ ̶3̶1̶0̶0̶0̶$̶ 27000$
1-но кімнатна квартира, м. Бориспіль, Соцмістечко 12, 30,2/16/6 кв.м., 1 поверх 4-х поверхового цегляного будинку, гарний стан, санвузол спільний, внутрішня квартира не кутова, дуже тепла, вікна металопластикові, пральна машинка-автомат, кухонні меблі, бойлер для підігріву води, холодильник. Квартира продається з меблями та технікою як на фото. Стеля 2.75 м. Без балкону. Поруч центральна вулиця Київський шлях. У пішій доступності: дитячий садок, школа, супермаркет 'Еко' та 'Сільпо', ТЦ 'Аеромол', аптеки, ресторани, кафе, гаражний кооператив. Гарна транспортна розв'язка, поруч зупинка транспорту містом та на Київ.
За даною квартирою на комісійні не претендуємо.
https://pran.kiev.ua/kvartiry_prodaga/ann-3158316.html















