Продається квартира Київська, Бориспільський, Бориспіль, Шевченка, 6 (№ 21-588-026)

Ціна: 70 000 $
Характеристики
Ціна: | 70 000 $ |
---|---|
№ об'єкта: | 21-588-026 |
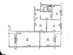
Кімнат: | 3 розд |
Поверх: | 3 / 9 ліфт |
Площа: | 72 / 38 / 8 м2 |
Санвузол: | 1 роздільний |
Балкон: | балкон |
Стан квартири: | Євроремонт |
Тип будинку: | Сучасний панельний |
Продається з: | Вбудованими меблями та технікою |
Опалення: | Громадська котельня |
Адреса: Київська, Бориспільський, Бориспіль, Шевченка, 6
3-комнатная квартира по ул. Шевченка 6, г. Борисполь. В квартире евроремонт, все комнаты раздельные, 2 спальни, просторная гостиная, большой холл, 2 лоджии, застекленные. Встроенная кухня (натуральный дуб). Квартира двухсторонняя, не угловая, наружные стены утеплены. Квартира в самом центре города, в 3-х минутной доступности вся необходимая инфраструктура, рядом парк, школа, детсад, отличная транспортная развязка.
https://pran.kiev.ua/kvartiry_prodaga/ann-588026.html